Villa a schiera in vendita

Cervia, via via bagnolo salara - Castiglione Di Cervia
€ 360.000
150 Mq 150 Mq
2 bagni 2 bagni

Villa a schiera in vendita

Cervia, via via bagnolo salara - Castiglione Di Cervia

Descrizione annuncio

CASTIGLIONE DI RAVENNA - NUOVA COSTRUZIONE

Nuova Costruzione - CASTIGLIONE DI RAVENNA

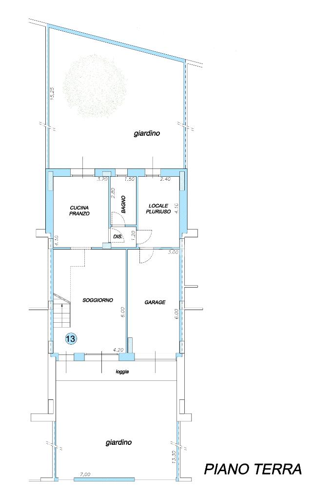
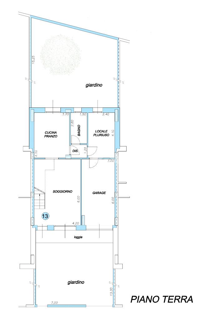
Proponiamo in vendita villetta a schiera di nuova costruzione.

L'immobile si sviluppa su due livelli così distribuiti:

Piano terra composto da soggiorno luminoso e garage con affaccio sul giardino di proprietà , cucina separata abitabile, bagno, ed ulteriore stanza multiuso con affaccio sul secondo giardino.

Tramite una scala interna si accede al primo piano dove si trova la zona notte composta da camera matrimoniale , due camere doppie e un secondo bagno.

Le stanze affacciano su terrazzi abitabili.

Questa villetta rappresenta un’opportunità unica per chi desidera vivere in zona residenziale.

L'immobile è in classe energetica A4 garantendo il massimo comfort ed efficienza energetica.

Presso i nostri uffici potrai avere una consulenza finanziaria su misura.

Se devi vendere un immobile prima dell'acquisto, non preoccuparti! Potremmo avere il giusto cliente nella nostra banca dati, chiama ora il 3534252611 - 0544993993.

Mostra tutto

Nelle vicinanze

Trasporto pubblico Trasporto pubblico
Trasporto pubblico
1,7 Km
Farmacia Farmacia
Castiglione
2,1 Km
Ristoranti Ristoranti
Pizzeria Punto Blu
2,0 Km
Trattoria Emilia
2,1 Km
Mostra tutto

Caratteristiche

Rif.:
61118928
Piano:
2 di 2 (Piano basso)
Box:
1
Terrazzi:
2
Camere da letto:
3
Arredamento:
Assente
Mostra tutto
Prezzo Prezzo
€ 360.000
Rata mutuo Rata mutuo
€ 1.659 / mese
Spese annue Spese annue
€ 0
Proponi il tuo prezzoProponi il tuo prezzo

Classe Energetica

A4
A4
A4
A4
A4
A4
A4
A4
A4
EP invernale del fabbricato:
EP estiva del fabbricato:
Anno di costruzione:
2025
Riscaldamento:
Autonomo
Tipo impianto:
A pavimento
Tipo alimentazione:
Pannelli

Ti interessa visionare l'immobile?

Fissa un appuntamento  Fissa un appuntamento

Richiedi informazioni

* Questi campi sono obbligatori

Calcola il tuo mutuo

Semplice e senza impegno
Anticipo

( % )
Mutuo

( % )

pochi semplici passi

inserisci i tuoi dati
Questionario completato
Grazie per aver richiesto un appuntamento senza impegno con un nostro Consulente del Credito e Assicurativo.

Hai inserito correttamente tutti i dati necessari e a breve riceverai una e-mail con un link da convalidare per inviare i tuoi dati.
Affiliato
Studio Mima Srl
Via Gramsci, 37 48015 Cervia (RA)

Il nostro staff


  • Riccardo Panzavolta
    Collaboratore

  • Roberto Valdifiori
    Affiliato
Via Gramsci, 37 48015 Cervia (RA)
Zona: Milano Marittima
Mostra su mappa
Orari: Dalle 09:00 alle 13:00 Dalle 15:00 alle 19:00
Affiliato
Studio Mima Srl
Via Gramsci, 37 48015 Cervia (RA)

2025 Tecnocasa Franchising S.p.A. - P. IVA 08365160152 - Via Monte Bianco 60/A 20089 Rozzano (MI). Ogni agenzia ha un proprio titolare ed è autonoma. Privacy policy | Policy utilizzo | Cookie policy